首頁 > 訊息專區 > 實績案例
->中部國立大學綜合教學大樓攝影棚燈光工程
2021-02-20
瀏覽次數:15364

地點:綜合教學大樓攝影棚
時間:2018~2020
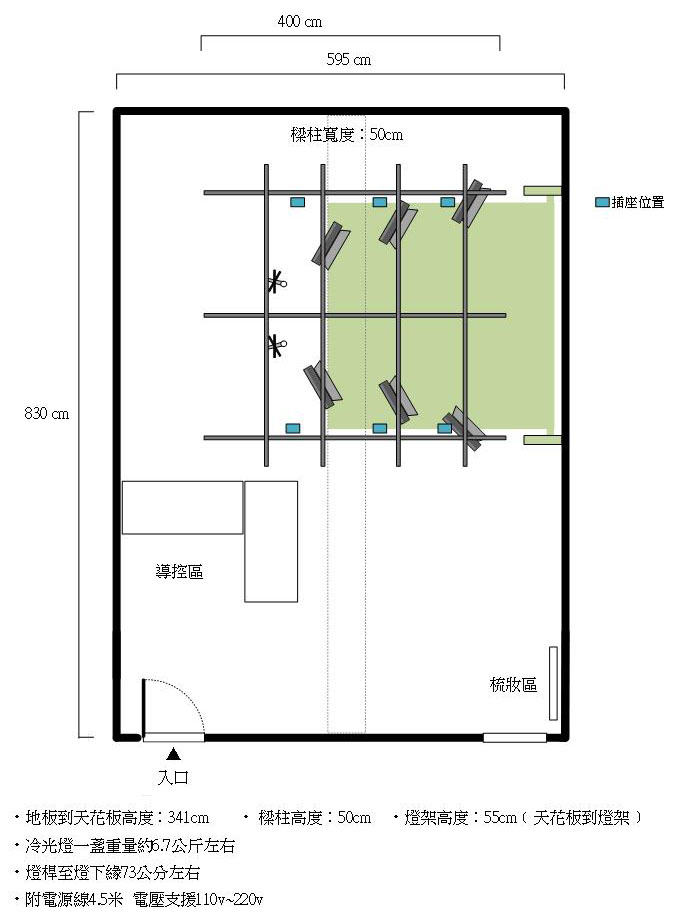
規格:
訂製攝影棚燈架及移動式綠去背腳架組﹝依圖施工﹞
a.棚架: 1.5" 圓鐵管面噴消光黑漆 400 cm  x7支_依設計圖含施工 1SET
‧2米彈簧手/含安全索*2、C型勾*1 2SET
    (無彈片/承重約10公斤)
‧施工架設、線材及設定費 1PCS
‧6組電源插座材料電工費 1PCS







會員說明│ 購物說明 │ 付款方式 │ 物流及運費方式 │ 退貨換貨方式 │ 隱私權保護政策 │ 著作權聲明 │ 合作提案
您是 3019821 位訪客,今年: 493913 人,本月 22269 人,本日: 841 人 目前線上人數: 1人
浩輔科技 地址:40859 台中市南屯區文山里寶山五街59號 電話:04-2380-7366 傳真:04-2380-7370